Home

Go to page: Home main
Go to page: Energia z miasta
Go to page: Wyjątkowe domy
Go to page: Komfortowe wnętrza
Go to page: Blisko do pracy

Zaprojektowane
z myślą o Twoich
potrzebach

W inwestycji Pokrzywno Park każdy może stworzyć przestrzeń idealnie dopasowaną do swojego stylu życia. Dzięki możliwości modyfikacji układu ścian wewnętrznych masz szansę zaprojektować układ pomieszczeń zgodnie ze swoimi potrzebami i preferencjami. Zmiany te realizowane są w ramach uzgodnionych z projektantem zmian lokatorskich, co gwarantuje staranne dopracowanie każdego detalu.

Dodatkowo oferujemy opcję rozbudowy instalacji o nowoczesne technologie, takie jak panele fotowoltaiczne czy system rekuperacji.

Poziomy slider

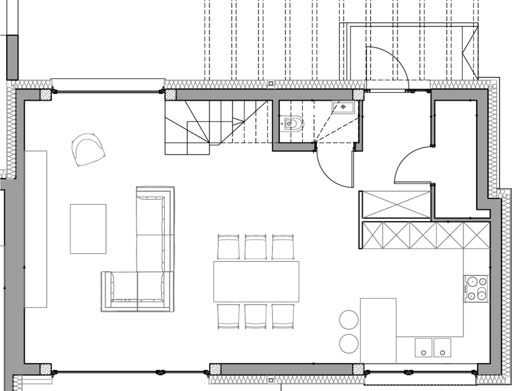
Przestrzeń,
która inspiruje

Parter domu to przestronna strefa dzienna, idealna do rodzinnych spotkań i relaksu. Salon o powierzchni 30 m², wyposażony w duże okna, zapewnia mnóstwo naturalnego światła i prowadzi bezpośrednio na taras z widokiem na ogród.

Poziomy slider

Prywatność
na piętrze

Piętro stanowi strefę prywatną, w której znajdują się 
trzy sypialnie oraz przestronna łazienka. Dzięki 
elastycznym rozwiązaniom projektowym możesz 
dostosować przestrzeń do swoich potrzeb – wybierz, 
czy wolisz garderobę, domowe biuro, czy dodatkowy 
pokój dla dziecka.

Go to page: Twoje potrzeby
Go to page: Przestrzeń
Go to page: Prywatność
Go to page: Fotowoltaika
Go to page: Lokalizacja
Go to page: Finansowanie
Go to page: Kontakt
Wybierz dom